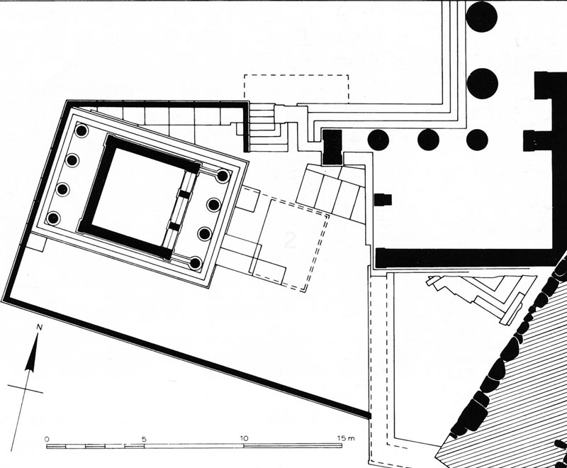
Ο ναός της Αθηνάς Νίκης κατασκευάζεται ανάμεσα στο 426 και το 421 π.Χ. πάνω στον πύργο της νοτιοδυτικής άκρης της Ακρόπολης, σύμφωνα με τα σχέδια του αρχιτέκτονα Καλλικράτη. Αντικαθιστά αρχαιότερους ναούς που τα κατάλοιπά τους διατηρούνται στο εσωτερικό του πύργου.
Ο ναός είναι ιωνικού ρυθμού και έχει ανάγλυφη ζωφόρο με διαφορετικές παραστάσεις σε κάθε πλευρά. Στην ανατολική εικονίζεται σύναξη θεών γύρω από τον ένθρονο Δία, ενώ στις άλλες αναπτύσσονται σκηνές μάχης Ελλήνων με Πέρσες και Ελλήνων με άλλους Έλληνες. Στη νότια πλευρά εικονίζεται η νικηφόρα μάχη των Ελλήνων κατά των Περσών στον Μαραθώνα, το 490 π.Χ., στην οποία πρωτοστατούν οι Αθηναίοι.
Από τα αετώματα διασώζονται ελάχιστα τμήματα. Πιθανολογείται ότι το δυτικό εικονίζει τη νίκη των Ολύμπιων θεών εναντίον των Γιγάντων (Γιγαντομαχία) και το ανατολικό τη νίκη των Αθηναίων εναντίον των Αμαζόνων (Αμαζονομαχία).
Για την προστασία των επισκεπτών, κατασκευάζεται γύρω στο 410 π.Χ., στην επικίνδυνη άκρη του πύργου που είναι κτισμένος ο ναός ένα μαρμάρινο στηθαίο (θωράκιο), με ανάγλυφες παραστάσεις: η θεά Αθηνά καθιστή, αναπαύεται μετά τις νικηφόρες μάχες και παρακολουθεί τις φτερωτές Νίκες που οδηγούν ταύρους στη θυσία ή κρατούν όπλα και στολίζουν νικητήρια τρόπαια με ελληνικό ή περσικό οπλισμό.

Η χρήση των δεδομένων σας περιγράφεται στις ρυθμίσεις απορρήτου